

Soluciones de Ingenieria
Ofrecemos soluciones integradas en muros cortina de aluminio y sistemas de ventanas, fachadas en vidrio, ACM, fenólicos y otros materiales, para proyectos de construcción de diversas escalas y necesidades arquitectónicas.


Innovación en Fachadas
Nuestro equipo multidisciplinar, con especialización en ingeniería y modelado 3D, está preparado para ofrecer soluciones innovadoras y personalizadas en fachadas. Aprovechamos las ventajas del diseño tridimensional para optimizar la eficiencia, estética y funcionalidad de cada proyecto constructivo, adaptándonos de manera precisa a sus necesidades específicas.


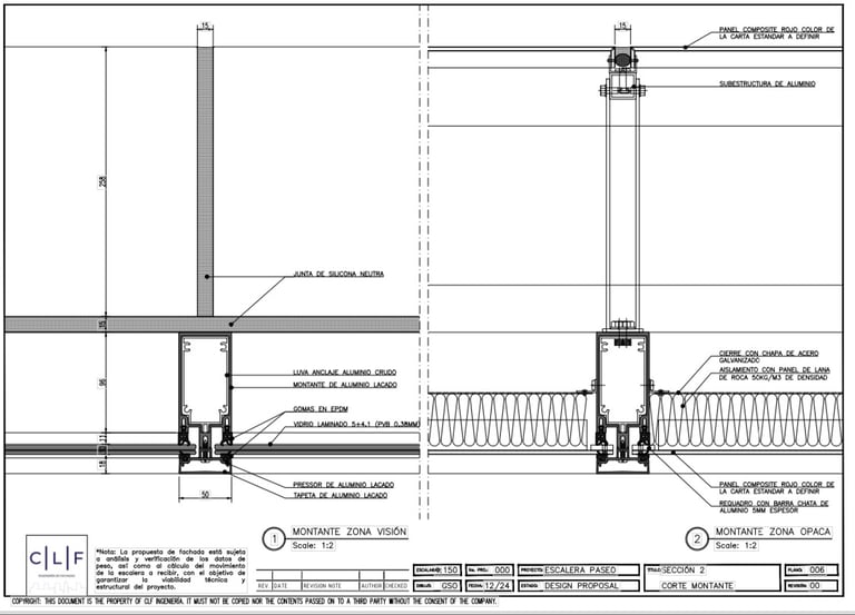
Realizamos cálculos estructurales detallados, incluyendo el dimensionamiento de perfiles, anclajes y la evaluación de vidrios, considerando cargas de viento, esfuerzos mecánicos y dilataciones térmicas. Mediante simulaciones avanzadas, analizamos el comportamiento de los materiales y garantizamos que cada componente cumpla con las normativas internacionales más exigentes, asegurando así la seguridad y durabilidad de la envolvente. Nuestra experiencia en ingeniería de fachadas nos permite desarrollar soluciones que integran resistencia estructural, eficiencia energética y diseño arquitectónico sin comprometer la viabilidad constructiva. Cada proyecto es analizado con un enfoque técnico preciso, buscando el equilibrio ideal entre funcionalidad, desempeño y estética. Nos comprometemos a entregar resultados de alto nivel, combinando tecnología, sostenibilidad y excelencia.
Ingeniería de Cálculo y Análisis de Fachadas


Soluciones de Apoyo Técnico para Instalaciones de Fachadas
Desarrollamos la ingeniería, diseño y producción de medios auxiliares para la instalación de fachadas, garantizando seguridad, precisión y eficiencia en cada proyecto.
